Linee guida Contratti di Prestazione Energetica (EPC)
Linee guida Contratti di Prestazione Energetica (EPC)
ENEA, 2020
Il contratto EPC è definito dalla Direttiva 2012/27/CEcome “l’accordo contrattuale tra il beneficiario e il fornitore di una misura di miglioramento dell'efficienza energetica,…
Leggi tutto Linee guida Contratti di Prestazione Energetica (EPC)Piano Emergenza Sicurezza Sistema Elettrico (PESSE)
Piano Emergenza Sicurezza Sistema Elettrico (PESSE): disposizioni per l'attuazione
Il Piano di Emergenza per la Sicurezza del Sistema Elettrico (i.e. PESSE) ha l’obiettivo di attuare la disalimentazione a rotazione dei carichi…
Leggi tutto Piano Emergenza Sicurezza Sistema Elettrico (PESSE)Raccolta Linee guida CIG | Gennaio 2020
Raccolta Linee guida CIG | Gennaio 2020
Elenco delle Linee Guida CIG (in rosso novità)
Linee guida CIG (Nuova raccolta in elenco)
Linee Guida CIG Nr. 01
Compilazione della dichiarazione…
Vademecum Decreto F-GAS 2020
Vademecum Decreto F-GAS 2020
ID 9804 | 03.01.2020
Rev. 1.0 2020 del 03.01.2020 Vademecum F-gas
[panel]Pubblicato nella GU Serie Generale n.1 del 02-01-2020 il D.Lgs del 5…
Leggi tutto Vademecum Decreto F-GAS 2020Rapporto statistico FER 2018 | GSE
Rapporto statistico FER 2018 | GSE
Il Rapporto “Energia da fonti rinnovabili in Italia - 2018” del GSE, come ogni anno, fornisce il quadro statistico completo sulla diffusione e sugli impieghi…
Leggi tutto Rapporto statistico FER 2018 | GSEQuadri elettrici: Quesiti ufficiali CEI
Quadri elettrici: Quesiti ufficiali CEI
ID 9739 | Update 18.12.2019
Quesiti ufficiali CEI relativi ai quadri elettrici, Risposte nel documento allegato.
_____
1. Codice quesito: 13776
Un quadro elettrico metallico deve…
Guida pratica Organizzare la Documentazione Quadri elettrici | CEI 121-5
Guida pratica organizzare la Documentazione dei Quadri elettrici | CEI 121-5
ID 9675 | Rev. 1.0 del 19.04.2024 / Guida in allegato
Documentazione quadro elettrico estratta dalla Guida CEI 121-5(Allegato…
Leggi tutto Guida pratica Organizzare la Documentazione Quadri elettrici | CEI 121-5UNI 10436:2019 | Rapporto di controllo e manutenzione caldaie
UNI 10436:2019 | Rapporto di controllo e manutenzione caldaie
ID 9560 | 22.11.2019
La norma UNI 10436:2019prescrive le operazioni da effettuare per ii controllo e la manutenzione di caldaie a…
Leggi tutto UNI 10436:2019 | Rapporto di controllo e manutenzione caldaieRapporto 2019 sugli energy manager in Italia
Rapporto 2019 sugli energy manager in Italia
Indagine, evoluzione del ruolo e statistiche
Presentato il 13 settembre 2019 presso la sala del Parlamentino del Ministero dello Sviluppo Economico il Rapporto FIRE sugli…
Leggi tutto Rapporto 2019 sugli energy manager in ItaliaEsempio progetto dispersore impianti di terra industriali CEI 99-5
Messa a terra impianti elettrici industriali: Esempio progetto dispersore di terra CEI 99-5
ID 8693 | 21.08.2019
Disponibile in allegato Esempio di progetto di un dispersore di terra (CEI…
Leggi tutto Esempio progetto dispersore impianti di terra industriali CEI 99-5Linee guida progettazione Centrali gas medicali
Linee guida progettazione e dimensionamento centrali gas medicali
La presente Linea Guida è destinata ai progettisti ed alle Strutture Sanitarie quali parti interessate alla sicurezza e all’efficienza degli impianti di distribuzione…
Leggi tutto Linee guida progettazione Centrali gas medicaliSentenza CC n. 7699 del 16 Aprile 2015
Sentenza CC n. 7699 del 16 Aprile 2015
Responsabilità solidale di proprietario e conduttore per l'infortunio mortale al terzo
I giudici di Cassazione, con la sentenza n. 7699 depositata il 16…
Leggi tutto Sentenza CC n. 7699 del 16 Aprile 2015Guida DM 37/2008
Guida al DM 37/2008
La Guida si propone come strumento operativo di approfondimento del D.M. 37/08, norma che, per la mancanza di disposizioni transitorie e per l’incerto coordinamento di alcuni…
Resistenza di messa a terra e protezione di differenziale

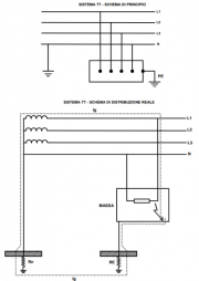
Resistenza di messa a terra e protezione di differenziale
La misura della resistenza di terrava eseguita, sia negli impianti alimentati direttamente in BT (sistema TT) sia in quelli con propria stazione…
Leggi tutto Resistenza di messa a terra e protezione di differenzialeLa redazione della dichiarazione di rispondenza
La redazione della dichiarazione di rispondenza ai sensi del DM 37/08
Il presente documento nasce con lo scopo primario di fornire ai professionisti abilitati un utile riferimento a supporto del proprio…
Leggi tutto La redazione della dichiarazione di rispondenzaGuida pompa di calore
La pompa di calore per un comfort sostenibile
“Gli edifici sono oggi responsabili del 40 per cento del consumo globale di energia nell’Unione Europea. Il settore è in espansione, e ciò…
Leggi tutto Guida pompa di caloreLinee guida CNPI 8/2020 | Infrastruttura di ricarica veicoli elettrici
Linee guida CNPI 2020 | Infrastruttura di ricarica veicoli elettrici
CNPI Linea guida n. 8/2020 del 01.01.2020
La linea guida prova ad esaminare le misure tecniche, amministrative ed economiche…
Leggi tutto Linee guida CNPI 8/2020 | Infrastruttura di ricarica veicoli elettriciCEI 31-93 | Verifica impianti elettrici ATEX ante 30 Giugno 2003
CEI 31-93 | Verifica impianti elettrici in luoghi con pericolo di esplosione
ID 9992 | 30.01.2020
Il presente documento tratto dalla Guida CEI 31-93 ha per oggetto gli impianti…
Leggi tutto CEI 31-93 | Verifica impianti elettrici ATEX ante 30 Giugno 2003Linee Guida realizzazione impianti di Pubblica illuminazione
Linee Guida Operative per la realizzazione di impianti di Pubblica illuminazione
Questa guida, frutto delle esperienze sviluppate da RSE sull’uso efficiente dell’energia elettrica, illustra le principali raccomandazioni da osservare durante la…
Leggi tutto Linee Guida realizzazione impianti di Pubblica illuminazioneRapporto statistico FER 2017 | GSE
Rapporto statistico FER 2017 | GSE
Il Rapporto “Energia da fonti rinnovabili in Italia - 2017” del GSE, come ogni anno, fornisce il quadro statistico completo sulla diffusione e sugli impieghi…
Leggi tutto Rapporto statistico FER 2017 | GSEVademecum Impianti di riscaldamento Pt > 35 kW: UNI 8364-X
Vademecum Impianti di riscaldamento Pt > 35 kW: UNI 8364-X Esercizio, Conduzione, Controllo e manutenzione
ID 9786 | 28.12.2019 - Attenzione possibile riferimento a norme non più in vigore ma riportate nelle UNI 8364-X.…
Leggi tutto Vademecum Impianti di riscaldamento Pt > 35 kW: UNI 8364-XAttrezzi a mano per lavori sotto tensione
Attrezzi a mano per lavori sotto tensione: caratteristiche e marcature
ID 9718 | 14.12.2019
Documento sulle caratteristiche e marcature di attrezzi a mano per i lavori sotto tensione e in prossimità…
Leggi tutto Attrezzi a mano per lavori sotto tensioneGuida normativa quadri elettrici | CEI 121-5
Guida normativa quadri elettrici | CEI 121-5
ID 9668 | Rev. 1.0 del 20.04.2024
Il Documento, estratto dalla Guida CEI 121-5:2015 + V1:2019, fornisce una guida alla norme e alla…
Leggi tutto Guida normativa quadri elettrici | CEI 121-5Rapporto di prova rendimento e fumi generatori di calore UNI 10389-1:2019
Rapporto di prova rendimento e fumi generatori di calore UNI 10389-1:2019
ID 9143 | 21.09.2019
Il presente Documento è estratto dalla UNI 10389-1:2019, norma che indica le modalità per eseguire…
Leggi tutto Rapporto di prova rendimento e fumi generatori di calore UNI 10389-1:2019Guida CEI 0-14 Verifica Impianti di terra DPR 462/01
Guida CEI 0-14 Verifica Impianti di terra DPR 462/01
ID 9007 | 29.08.2019
Premessa
Il presente documento, estratto della Guida CEI 0-14, riporta come identificare i luoghi di lavoro oggetto del…
Leggi tutto Guida CEI 0-14 Verifica Impianti di terra DPR 462/01La verifica periodica degli impianti di riscaldamento
La verifica periodica degli impianti di riscaldamento
Regione Emilia-Romagna, 2018
Il documento si pone l’obiettivo di definire gli ambiti di intervento del personale delle A.USL, precisare le modalità di esecuzione delle…
Leggi tutto La verifica periodica degli impianti di riscaldamentoSentenza CC n. 8637/2016 del 3 maggio 2016

Sentenza CC n. 8637/2016 del 3 maggio 2016
La situazione di assoluta inutilizzabilità dell'immobile, a seguito della scoperta di cavi elettrici privi di alcuna protezione e non a norma, rende legittima…
Leggi tutto Sentenza CC n. 8637/2016 del 3 maggio 2016Impianti ante 1990: adeguamento e status
Impianti ante 1990: adeguamento e status
Gli impianti relativi agli edifici adibiti ad uso civile (attività produttive, ecc) devono ad oggi essere stati adeguati secondo quanto aveva previsto la Legge n. 46/90. Gli…
Leggi tutto Impianti ante 1990: adeguamento e statusCEI 64-21: Impianti adeguati a persone con disabilità/specifiche necessità
CEI 64-21: Impianti elettrici adeguati a persone con disabilità/specifiche necessità / Ed. Agosto 2021
ID 8473 | 05.08.2021 / Documento allegato aggiornato CEI 64-21:2021 (versione Red-Line*)
Documento aggiornato alla nuova norme CEI…
Leggi tutto CEI 64-21: Impianti adeguati a persone con disabilità/specifiche necessitàSistemi Semplici di Produzione e Consumo
Regolazione dei Sistemi Semplici di Produzione e Consumo
Testo Integrato dei Sistemi Semplici di Produzione e Consumo - TISSPC
Update 23.05.2019
Allegato A alla deliberazione 578/2013/R/eel – Versione integrata…
Linee guida UE Ristrutturazione degli edifici
Linee guida UE Ristrutturazione degli edifici
Raccomandazione (UE) 2019/786 della Commissione dell'8 maggio 2019 sulla ristrutturazione degli edifici (GU L 127/34 del 16.05.2019)
________
Introduzione
La direttiva 2010/31/UEsulla prestazione energetica nell'edilizia («direttiva Prestazione energetica nell'edilizia»…
Leggi tutto Linee guida UE Ristrutturazione degli edificiRapporto GSE 2018
Rapporto GSE 2018
Il Rapporto del GSE, espressione del continuo impegno a fare trasparenza, rende disponibili dati e analisi sulle attività gestite dalla Società nel corso dell'ultimo anno, fornendo a decisori…
Leggi tutto Rapporto GSE 2018Altri articoli...
- Efficienza Energetica degli impianti elettrici
- Progettazione impianti: Quadro generale DM 37/2008 e Tavola di sintesi
- Check list Verifica e manutenzione motori ATEX EN 60079-17
- EN 60079-17: Verifica e manutenzione impianti elettrici ATEX
- CEI 0-16 / 0-21: Connessione Utenti attivi/passivi reti AT e MT / BT | 2019




















