UNI/TS 11805-1:2021 Movimentazione di carichi sospesi carrelli elevatori
| ID 17409 | | Visite: 16896 | Documenti Riservati Direttiva macchine | Permalink: https://www.certifico.com/id/17409 |
UNI/TS 11805-1-2021 Movimentazione di carichi sospesi carrelli elevatori
ID 17409 | 21 Agosto 2022 / Documento completo in allegato
Il Documento illustra il quadro normativo delle attrezzature bracci a forche per il sollevamento abbinati a carrelli elevatori di cui alla specifica UNI/TS 11805-1:2021, la previsione per la marcatura CE della combinazione carrello & attrezzatura, dalla Circolare MLPS n.30 del 24 Dicembre 2012 ai requisiti della UNI/TS 11805-1. Disposte liste di controllo per l'applicazione.
La specifica UNI/TS 11805-1:2021 fornisce un quadro più articolato delle attrezzature bracci gru e loro combinazione con il carrello elevatore, e deve essere considerata integrativa alla Circolare MLPS n.30 del 24 Dicembre 2012. In particolare si sottolinea che la specifica individua i casi in cui l'attrezzatura combinazione di carrello & attrezzatura braccio gru deve essere marcatura CE.
UNI/TS 11805-1:2021
Carrelli industriali - Requisiti di sicurezza e verifica - Parte 1: Requisiti addizionali per la movimentazione di carichi sospesi con carrelli semoventi controbilanciati e retrattili, con guidatore a bordo e portata fino a 10.000 kg
La specifica tecnica fornisce i requisiti per le varie tipologie di carrelli industriali controbilanciati e retrattili (con sollevatore o con carrello porta forche retrattile), specificati nello scopo della EN ISO 3691-1, qualora dotati di attrezzature od utensili per la movimentazione di un singolo carico sospeso, libero di oscillare in qualsiasi direzione.
Al momento della pubblicazione della presente specifica tecnica è allo studio un documento simile dedicato specificatamente alla movimentazione dei contenitori flessibili sospesi per prodotti solidi sfusi (big bags - Fibcs).
Oggetto: Problematiche di sicurezza delle macchine - Requisiti di sicurezza delle prolunghe applicate alle forche dei carrelli elevatori cosiddette" bracci gru".
________
Le prolunghe per forche di carrelli elevatori sono "accessori di sollevamento" ai sensi della Direttiva macchine 2006/42/CE e devono essere marcata CE.
Il 24 Dicembre 2012 il Ministero del Lavoro ha emanato la Circolare MLPS n.30 del 24 Dicembre 2012 relativa ai carrelli elevatori, con la quale è stato chiarito come comportarsi in presenza di prolunghe applicate alle forche dei carrelli elevatori per la movimentazione ed il trasporto di materiale.
Le prolunghe (chiamate comunemente “braccio gru”), realizzate dai Fabbricanti di carrelli elevatori, altri Fabbricanti e dagli utilizzatori, vengono applicate difatti modificando la funzionalità della macchina per adoperarla in modo diverso da quanto previsto originariamente.
Al fine di ottenere un’analisi valida a livello Europeo è stato interpellato il gruppo di lavoro macchine che, nella riunione del 15 febbraio 2012, ha concluso:
“Un braccio telescopico di sollevamento progettato per essere assemblato da parte dell’utente con un carrello elevatore per sollevare carichi sospesi è un’attrezzatura intercambiabile a norma dell’articolo 1 1.b e 2.b della Direttiva macchine 2006/42/CE.
Vedi Documento
La UNI/TS 11805-1 prevede la marcatura CE (con esclusione delle applicazioni con attrezzatura a ganci ad oscillazione ridotta(1)) della macchina originata dalla combinazioni carrello & attrezzatura e deve essere oggetto di specifica Dichiarazione CE di Conformità.
Schema 1 - Marcatura CE combinazioni carrello & attrezzatura / UNI/TS 11805-1:2021
Tali attrezzature combinate sono quindi soggette al DM 11 Aprile 2011, comunicazione di messa in servizio (CIVA) e verifiche periodiche Art. 71 D.Lgs. 81/2008.
(1) Attrezzatura a ganci con oscillazione ridotta
Attrezzatura a ganci con oscillazione ridotta per movimentazione di carichi parallelepipedi di altezza massima 1.000 mm rigidi e praticamente assimilabili a solidi omogenei)
Oscillazione ridotta: spostamento del baricentro del carico in una qualsiasi direzione minore di 150 mm. (Appendice A).
__________
Estratto UNI/TS 11805-1:2021
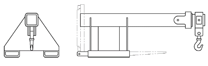
La presente specifica tecnica definisce i requisiti di sicurezza e di prova per l’installazione, su piastre porta-forche o su bracci forca di carrelli controbilanciati e retrattili con guidatore a bordo e marcati CE sulla base di norme armonizzate di prodotto, di attrezzature a braccio non orientabile con posizioni definite del gancio (Fig. 1 e Fig. 2) per la movimentazione di carichi sospesi che possono oscillare rispetto al carrello e costruite in conformità alle norme pertinenti.
Fig. 1 Esempio di attrezzatura con aggancio alla piastra porta forche normalizzata (ISO 2328)
Fig. 2 Esempio di attrezzatura inforcabile con blocco/posizionamento meccanico
Fig. 3 - Esempio di attrezzatura inforcabile con blocco/posizionamento meccanico
La lunghezza massima del braccio (sbraccio) non deve essere maggiore di 2,5 m dal piano anteriore della piastra porta-forche e l’elevazione del gancio non deve essere maggiore di 5,5 m.
Fig. 4 - Misure massime braccio con gancio (braccio gru)
Nel presente documento, l’attrezzatura sopra descritta è citata, d’ora in poi, con la dizione: “braccio con gancio”.
...
5.1 Generalità
Il braccio con gancio deve riportare una targa indelebile con almeno:
- Identificazione del fabbricante;
- Modello;
- Matricola;
- Anno di fabbricazione;
- Marcatura CE;
- Portata strutturale in ciascuna posizione di lavoro del gancio. Deve essere chiaramente indicato che è riferita al solo braccio con gancio;
- Numero/i di matricola dello/degli specifico/i carrello/i su cui può essere utilizzato lo specifico braccio con gancio.
5.2 Una targa, aggiuntiva a quella della portata del carrello senza attrezzatura, deve specificare:
- tipo e numero di serie dell’attrezzatura;
- portate effettive C dell’abbinamento, in ogni posizione del gancio, ridefinite come previsto nella presente linea guida.
La targa è fissata al carrello e visibile dall'operatore nella sua normale posizione di guida.
Deve essere predisposta una targa, aggiuntiva a quella della portata del carrello senza attrezzatura, deve specificare:
- tipo e numero di serie dell’attrezzatura;
- portate effettive C dell’abbinamento, in ogni posizione del gancio, ridefinite come previsto nella presente linea guida.
5.3 Devono essere previsti dispositivi meccanici al fine di permettere il sollevamento, fissaggio, posizionamento e bloccaggio dell’attrezzatura alle parti strutturali dell’interfaccia del carrello.
L’interfaccia dell’attrezzatura sul lato carrello deve essere progettata in modo da permettere che l’attrezzatura risulti univocamente posizionata, fissata e bloccata da dispositivi meccanici (escludendo per le attrezzature inforcabili l’azione di attrito anche esercitata mediante il serraggio di viti) in modo che il mantenimento dell’attrezzo nella sua prevista e corretta posizione di lavoro sulle forche sia sempre garantito.
Deve essere garantito che i sistemi di fissaggio e centraggio dell’attrezzatura siano protetti dallo sgancio accidentale, imperdibili, di colore contrastante col fondo e facilmente ispezionabili.
5.4 Il carrello con attrezzature a braccio non orientabile con posizione unica e non modificabile del gancio deve essere dotato di un limitatore di carico che deve, in ogni caso, limitare automaticamente il carico massimo sollevabile al valore definito nei punti 8.3 e 8.4. In presenza di un braccio con posizioni del gancio multiple, deve essere presente anche un limitatore di momento.
Questi dispositivi di limitazione devono arrestare almeno i movimenti pericolosi (per esempio sollevamento del carico, aumento comandato di sbraccio, ecc.) al superamento dei limiti di corretto funzionamento.
L’intervento del dispositivo di limitazione deve essere garantito entro il 5% della portata massima ammessa per la specifica condizione di lavoro.
La funzione di sicurezza deve rispettare il PLr c (Performance Level), secondo UNI EN ISO 13849-1.
Se il modo d'intervento dei dispositivi limitatori richiede la presenza di un comando di by pass del blocco, questo comando deve essere attivato solo da una specifica chiave o dispositivo codificato equivalente, il suo comando deve essere ad azione mantenuta e l’attivazione delle funzioni pericolose deve essere possibile soltanto in condizioni di minor rischio.
...
6 FORMAZIONE DELL’OPERATORE
I lavoratori incaricati dell’utilizzo di carrelli dotati di braccio con gancio e dell’imbragatura dei carichi devono essere adeguatamente addestrati in merito alle specifiche modalità di montaggio e rimozione dell’attrezzatura, nonché nell’utilizzo sicuro della medesima e nelle modalità di manipolazione sicura dei carichi.
Per l’operatore del carrello questa formazione è aggiuntiva alla formazione e all’addestramento di base per operare con il carrello dotato delle sole forche.
In Italia, la formazione degli operatori addetti alla conduzione di carrelli industriali con operatore a bordo su sedile, è disciplinata dalla Legislazione vigente.
L’operatore addetto alla guida di un carrello elevatore a forche equipaggiabile con braccio con gancio, deve essere abilitato alla conduzione di gru mobili).
...
8 DETERMINAZIONE DELLA PORTATA EFFETTIVA
8.1 Portata stimata (P)
La portata stimata P può essere determinata con il carrello posizionato in piano, con il gruppo di sollevamento nella posizione stabilita (vedere punto 5.10) e con il gancio alla massima altezza (in ogni caso non maggiore di 5,5 mm da terra secondo il punto 5.12).
8.5 Prove e procedimenti di prova prima della messa in servizio
8.5.2 Prova statica
Il carico di prova deve essere almeno 1,25 volte la portata massima effettiva C. Devono essere effettuare prove nelle posizioni e configurazioni che impongono i carichi massimi o le sollecitazioni massime ai componenti e alle strutture dell’apparecchio di sollevamento.
8.5.3 Prova dinamica
Durante l’esecuzione delle prove il complesso braccio con gancio carrello deve essere azionato da una persona competente secondo le prescrizioni del punto 9.
Il carico di prova deve essere almeno pari a 1,1 volte la portata massima effettiva C.
Le prove dinamiche devono essere eseguite separatamente per ogni movimento di traslazione e per i movimenti gruppo di sollevamento.
La prova deve essere eseguita aumentando progressivamente le velocità fino al raggiungimento di quelle massime prescritte per il normale funzionamento e deve comprendere l'avviamento e di ogni movimento.
...
9 PRESCRIZIONI PER IL MANUALE D’USO
In aggiunta alle prescrizioni di base del carrello e a quelle dell’attrezzo del braccio con gancio, conformi alla UNI EN ISO 3691-1 e UNI EN 1175 un manuale di prescrizioni specifiche integrative per il complesso carrello e braccio con gancio deve contenere almeno:
...
APPENDICE A ATTREZZATURA A GANCI CON OSCILLAZIONE RIDOTTA (normativa)
A.1 Scopo
Lo scopo è l’installazione di attrezzatura a ganci con oscillazione ridotta per movimentazione di carichi parallelepipedi di altezza massima 1.000 mm rigidi e praticamente assimilabili a solidi omogenei. In particolare per la movimentazione di batterie di trazione con cassoni DIN 43536.
Fig. 6 - Esempio di attrezzo inforcabile a 4 ganci con oscillazione ridotta
Fig. 7 - Esempio di attrezzo inforcabile a 1 gancio con oscillazione ridotta
...
B.2 Combinazioni carrello & attrezzatura a gancio
Le combinazioni carrello & attrezzatura di cui alla presente specifica tecnica rientrano nel campo di applicazione della direttiva macchine.
- Il Carrello e l’attrezzatura devono essere singolarmente marcati CE ed accompagnati dalla relativa Dichiarazione CE di Conformità alla Direttiva Macchine;
- Le modifiche introdotte sul carrello (con esclusione delle applicazioni descritte nell’appendice A) fanno si che la macchina originata in questa configurazione debba essere oggetto di specifica Dichiarazione CE di Conformità.
...
...
segue in allegato
Certifico Srl - IT | Rev. 0.0 2022
©Copia autorizzata Abbonati
Collegati
Circolare MLPS n.30 del 24 Dicembre 2012
Prolunghe forche carrelli elevatori: casi e comportamenti
Direttiva macchine 2006/42/CE
www.tussl.it
| Descrizione | Livello | Dimensione | Downloads | |
|---|---|---|---|---|
| UNI TS 11805-1_2021 Movimentazione di carichi sospesi carrelli elevatori Rev. 00 2022.pdf Certifico Srl - Rev. 0.0 2022 |
443 kB | 535 |


























