Verifiche periodiche Idroestrattori: Note e Chiarimenti
| ID 10167 | | Visite: 18272 | Documenti Riservati Sicurezza | Permalink: https://www.certifico.com/id/10167 |
Verifiche periodiche Idroestrattori: Note e Chiarimenti
ID 10167 | 16.02.2020
Documento (completo in allegato) sugli idroestrattori soggetti a verifica periodica di cui all’Art 71 c.11 del D.Lgs. 81/2008, esempi, note e riferimenti specifici, classificazione, riferimenti normativi.
Gli idroestrattori a forza centrifuga sono essenzialmente costituiti da un paniere che ruotando attorno ad un asse (albero) comandato da un motore provoca la separazione centrifuga dei materiali da trattare.
La classificazione dei vari tipi di idroestrattori viene quindi effettuata in base alle varie caratteristiche degli organi suddetti.
Nel seguito si parlerà di “Idroestrattori”, come “macchine centrifughe/centrifughe” con “paniere” per le quali è prevista la verifica periodica attrezzature di cui all’Art 71 c.11 del D.Lgs. 81/2008. Sono escluse quindi dalle verifiche le centrifughe che non hanno paniere (altro vedi a seguire).
Le centrifughe sono soggette a marcatura CE in accordo con la Direttiva macchine 2006/14/CE con norma armonizzata in Presunzione di Conformità EN 12547:2014.
Il D.Lgs. 81/2008 Allegato V al punto 5.8, riporta i requisiti di sicurezza degli delle macchine per centrifugare e simili.
Le modalità di effettuazione delle verifiche periodiche sono riportate nel D.M. 11 aprile 2011.
Come illustrato a seguire, non tutte le centrifughe sono soggette a verifica periodica, discriminanti sono
- dimensioni del paniere
- funzionamento continuo
- funzionamento discontinuo
Si vedano a seguire anche esempi di tipi di macchine non soggette a verifica.
Excursus
Centrifughe - Requisiti comuni di sicurezza
La presente norma è la versione ufficiale della norma europea EN 12547 (edizione ottobre 2014). La norma si applica a centrifughe per la separazione o il cambiamento di concentrazione di miscele di liquidi e solidi. Essa fornisce i requisiti per ridurre al minimo i pericoli significativi collegati al funzionamento delle centrifughe.
PARTI PER DEFINIRE UN IDROESTRATTORE
TAMBURO: Camera contenente il prodotto da trattare e disposta per poter ruotare intorno al suo asse di simmetria.
PANIERE: Tamburo utilizzato per scopi di filtrazione, fanno parte il mantello, eventuali anelli intermedi e fasce, inferiore e superiore, bordo superiore, fondo.
…
3.1.1 centrifuga: Dispositivo di separazione dotato di una camera che - quando in funzione - ruota attorno al suo asse di simmetria e in questo modo sottopone il materiale da trattare a una forza centrifuga
3.2 Elementi di una centrifuga
3.2.1 tamburo: Camera contenente il materiale da trattare e disposta in modo da ruotare intorno al suo asse di simmetria.
3.2.2 anello: Anello fissato alla periferia esterna di un tamburo per accrescere la sua resistenza meccanica.
3.2.3 paniere: Tamburo utilizzato per scopi di filtrazione.
3.2.4 catino: Tamburo utilizzato per la separazione di liquidi non miscelabili e/o la sedimentazione di solidi.
3.2.5 rotore: Parte assemblata della centrifuga che ruota, che comprende il tamburo e l'albero con i loro accessori.
3.2.6 carcassa; Incastellatura: Involucro nel quale ruota almeno il tamburo e che può trattenere i materiali da trattare e le fasi separate che escono dal tamburo verso percorsi particolari.
Nota La carcassa può essere composta da più componenti.
3.2.7 copertura della carcassa; coperchio: Parte fissata sulla carcassa per permettere l'accesso, per esempio per ispezione, utilizzo o manutenzione.
...
CLASSIFICAZIONE E DESCRIZIONE DEGLI IDROESTRATTORI
A seconda che la fase di alimentazione (o caricamento) e di scarico siano o no simultanee, vengono classificate in:
- macchine di tipo continuo ovvero le principali tappe del procedimento sono effettuate in continuo
- macchine di tipo discontinuo ovvero le principali tappe del procedimento son effettuate in sequenza; rientrano in questa definizione anche le centrifughe a funzionamento intermittente ovvero può essere programmata per concatenare in sequenza alimentazione, lavaggio e marcia e dove lo scarico dei solidi può avvenire in maniera automatica o manuale.
A.2.2 centrifuga a funzionamento continuo: Centrifuga in cui le fasi principali del processo quali alimentazione, separazione e lavaggio sono effettuate in continuo.
A.2.3 centrifuga a funzionamento discontinuo: Centrifuga in cui le fasi principali del processo quali alimentazione, separazione e lavaggio sono effettuate in sequenza.
Considerando la posizione dell'asse di rotazione, gli idroestrattori si distinguono In:
- idroestrattori ad asse orizzontale;
- idroestrattori ad asse verticale.
Gli idroestrattori ad asse verticale possono essere ancora suddivisi a seconda del tipo di sospensione dell'incastellatura:
- idroestrattori a sospensione superiore (pendolari);
- idroestrattori a sospensione inferiore.
Ciascuna delle sospensioni potrà essere:
- sospensione del tipo rigido;
- sospensione del tipo elastico (oscillante).
Altra suddivisione può essere fatta per macchine singole a seconda della posizione del motore:
- con motore coassiale;
- con motore laterale (a sbalzo).
I tipi di idroestrattori attualmente più diffusi nell'industria, sono ad asse verticale, a sospensione inferiore oscillante e con motore a sbalzo.
Esempio di questo tipo di idroestrattore, che è riportato in Figura 2 e 3.
...
Un esempio di idroestrattore ad asse orizzontare è riportato in Figura 4.
...
Figura 3 - Centrifuga verticale con scarico manuale, centrifuga a funzionamento discontinuo, macchina filtrante, macchina sedimentatrice
Legenda
1. Basamento, piedistallo
2. Telaio
3. Colonna di sospensione
4. Carcassa, incastellatura
5. Copertura, coperchio
7. Oblò
9. Albero
10. Puleggia condotta
11. Motore di trascinamento
12. Puleggia motrice
15. Paniere
16. Bordo del paniere
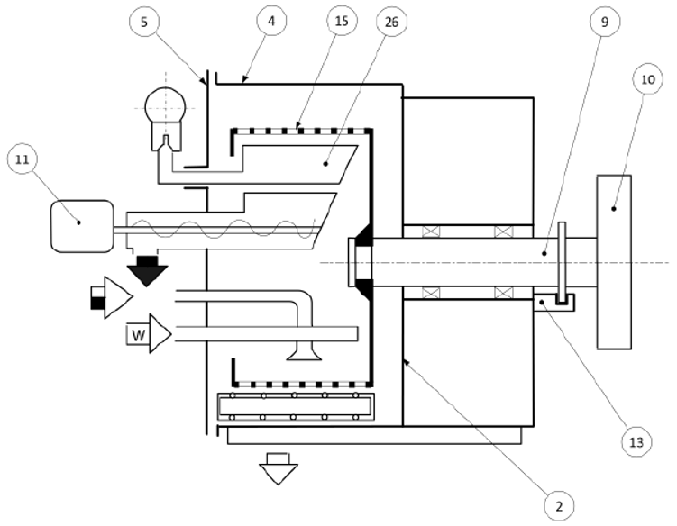
Figura 4 - Centrifuga orizzontale a raschiante con scarico automatico, centrifuga a funzionamento discontinuo, macchina filtrante
Legenda
2. Telaio
4. Carcassa, incastellatura
5. Copertura, coperchio
9. Albero
10. Puleggia condotta
11. Motore di trascinamento
13. Freno
15. Paniere
26. Vomere
Illustrazioni del paniere di un idroestrattore la cui dimensiona discrimina la verifica periodica Art 71 c.11 del D.Lgs. 81/2008 sono riportati in Figura 5.
...
Figura 5 - Esempi di Paniere
...
VERIFICA PERIODICA IDROESTRATTORE
Per gli adempimenti di cui dell'art. 71 comma 11 del D.Lgs 9 aprile 2008, n. 81, è da considerare idroestrattore un apparecchio caratterizzato da un unico paniere ruotante resistente, avente qualsiasi forma, con o senza foratura, funzionante a forza centrifuga, nel quale le fasi lavorative avvengano in tempi distinti (fase di carico - centrifugazione - arresto - scarico), al fine di estrarre un liquido a mezzo della centrifugazione, ovvero per separare un solido (o miscele di solidi) da un liquido, oppure di liquidi da una miscela di liquidi oppure per variare le proporzioni in una miscela.
Come detto, gli droestrattori a forza centrifuga sono essenzialmente costituiti da un paniere che ruotando attorno ad un asse (albero) comandato da un motore provoca la separazione centrifuga dei materiali da trattare.
La classificazione dei vari tipi di idroestrattori viene quindi effettuata in base alle dimensioni del paniere e velocità del paniere.
Si ha quindi:
Per gli idroestrattori operanti con solventi infiammabili o tali da dar luogo a miscele esplosive od instabili l'unico parametro è il diametro esterno del paniere.
Macchine centrifughe considerate idroestrattori - soggetti a verifica
Sono considerati idroestrattori:
- gli idroestrattori per asciugare la biancheria;
- gli idroestrattori per asciugare le verdure;
- gli idroestrattori per masse zuccherine;
- gli idroestrattori per disidratare prodotti chimici;
- gli idroestrattori per disoleare minuterie metalliche.
Fig. 6 - Macchina centrifuga ad asse orizzontale (considerata Idroestrattore Art. 71 c.11 D.Lgs. 81/2008)
...

Fig. 7 - Macchina centrifughe ad asse verticale (considerata Idroestrattore Art. 71 c.11 D.Lgs. 81/2008)
...
- le macchine che fanno uso della forza centrifuga per costipare materiali, quali ad esempio le macchine a centrifugare per la produzione dei tubi di cemento o di ghisa o per la produzione di camicie di motori a scoppio;
- la lavacentrifuga è una macchina nel cui paniere la biancheria o il tessuto viene prima lavato e poi asciugato mediante centrifugazione è pertanto durante questa ultima fase del ciclo operativo che essa svolge la funzione di idroestrattore per cui la fase di centrifugazione è inserita in un ciclo operativo più complesso;
- le centrifughe di laboratorio.
Non vengono considerate altresì soggette agli obblighi di verifica le macchine che, pur effettuando una separazione per effetto di forza centrifuga, non sono caratterizzate da un organo rotante assimilabile ad un paniere, quali ad esempio:
- le scrematrici per burro;
- i separatori per olio di oliva;
- separatori per mosti di uve.
...
Figura 9 - Separatore ad asse verticale per olio di oliva (a dischi) (non considerata Idroestrattore Art. 71 c.11 D.Lgs. 81/2008)
...
PERIODICITA’ VERIFICHE PERIOCHE IDROESTRATTORI
Gli Idroestrattori in base all'art. 71 comma 11 del D. Lgs. 81/2008 e Allegato VII sono sottoposti a verifica iniziale e periodica.
...
D.Lgs. 81/2008 Allegato V
…
5.8 Macchine per centrifugare e simili
...
Idroestrattori operanti con solventi
Per tali idroestrattori è stata emanata nel 1980 da parte del Ministero del Lavoro e Previdenza Sociale la circolare n. 55 del 23 giugno 1980 che rimane applicabile alle macchine messe in servizio in data antecedente al 21 settembre 1996 ovvero entrata in vigore del DPR 459/96 (abrogato, in vigore D.Lgs 17 /2010) relativo alla marcatura CE delle macchine.
...
...
D.Lgs. 81/2008 Allegato V (per idroestrattori non marcati CE)
...
D.Lgs. 81/2008 Art. 71. - Obblighi del datore di lavoro
...
11. Oltre a quanto previsto dal comma 8, il datore di lavoro sottopone le attrezzature di lavoro riportate in allegato VII a verifiche periodiche volte a valutarne l'effettivo stato di conservazione e di efficienza ai fini di sicurezza, con la frequenza indicata nel medesimo allegato. La prima di tali verifiche è effettuata dall'ISPESL che vi provvede nel termine di sessanta giorni dalla richiesta, decorso inutilmente il quale il datore di lavoro può avvalersi delle ASL e o di soggetti pubblici o privati abilitati con le modalità di cui al comma 13. Le successive verifiche sono effettuate dai soggetti di cui al precedente periodo, che vi provvedono nel termine di trenta giorni dalla richiesta, decorso inutilmente il quale il datore di lavoro può avvalersi di soggetti pubblici o privati abilitati, con le modalità di cui al comma 13.
...
...
Certifico Srl - IT | Rev. 0.0 2020
©Copia autorizzata Abbonati
Collegati
Circolare Min. Lavoro 23/06/1980 n. 55
D.Lgs. 81/2008 Testo Unico Salute e Sicurezza Lavoro
INAIL: Moduli e modelli relativi certificazione e verifica
EN 12547 Centrifughe - Requisiti comuni di sicurezza | Testo requisiti
EN 12547 Centrifughe - Requisiti comuni di sicurezza | File CEM
Sicurezza Centrifughe EN 12547
| Descrizione | Livello | Dimensione | Downloads | |
|---|---|---|---|---|
| Verifiche periodiche Idroestrattori - Note e Chiarimenti Rev. 00 2020.pdf Certifico S.r.l. Rev. 00 2020 |
1001 kB | 173 |
Tags: Sicurezza lavoro Rischio attrezzature lavoro Abbonati Sicurezza























