Filtro a prova di fumo e sistemi EN 12101-6
| ID 8506 | | Visite: 79222 | Documenti Riservati Sicurezza | Permalink: https://www.certifico.com/id/8506 |
Filtro a prova di fumo e sistemi EN 12101-6 / Quadro tecnico/normativo - Update Giugno 2024
ID 8506 | Rev. 1.0 del 22.06.2024 / Documento completo allegato
Documento completo allegato e altri Documenti inerenti i Filtri a prova di fumo e i Sistemi a differenza di pressione secondo la norma EN 12101-6. Il Documento è suddiviso in 3 parti:
1. Filtro a Prova di fumo
2. EN 12101-6:2022 Sistemi a differenza di pressione - Kit
3. Norme della Serie EN 12101-X
- UNI EN 12101-6:2022
- Annex A EN 12101-6:2022
- Aggiunto Cap. 3:
3. EN 12101-X Norme della serie
- Altri aggiornamenti
Il concetto alla base del locale filtro a prova di fumo è "il controllo per differenza di pressione" o "sistema di sconnessione fluidodinamica": mettendo in sovrappressione il locale di collegamento tra due compartimenti, si previene la possibilità che, in caso di incendio, fumi e gas di combustione provenienti da uno dei due compartimenti possano invadere il compartimento contiguo. I locali che collegano i compartimenti assumono quindi il ruolo di filtro.
Nella pratica, uno dei due compartimenti è frequentemente costituito dal vano scale che, in caso di incendio, costituisce una via di esodo privilegiata. Il locale filtro in sovrappressione previene la possibilità che il fumo possa invadere il vano scale.
Tale concetto di filtro a prova di fumo, presente ad esempio in Italia e Francia, non è comune a tutti gli ordinamenti legislativi Europei.
Inoltre esisite una soprapposizione impropria e frequente tra la EN 12101-6 e il DM 30/11/1983 ampliato dal DM 3/8/2015) che hanno contesti di applicazione diversi. In particolare la EN 12106-1 tratta di “Sistemi differenza di pressione - Kit” che devono essere marcati CE in accordo con il CPR Regolamento (UE) 305/2011.
Il DM 30/11/1983 e il DM 3/8/2015 definiscono i filtri a prova di fumo in condizioni di sovrapressione, la EN 12101-6 tratta sistemi in contesti di vani posti in sovrapressione o depressione.
La EN 12101-6 "Sistemi per il controllo di fumo e calore - Parte 6: Specifiche per i sistemi a differenza di pressione - Kit", specifica sistemi di controllo a differenza di pressione progettati per trattenere il fumo in corrispondenza di una barriera fisica in un edificio, come una porta o altra apertura simile.
La norma EN 12101-6 è armonizzata per il CPR Regolamento (UE) 305/2011 con obbligo di marcatura CE e deve essere applicata congiuntamente ad EN 12101-13.
1. Filtro a prova di fumo
La normativa che definisce il "filtro a prova di fumo" è in primis quella del DM 30/11/1983:
1.7 - Filtro a prova di fumo (1) (2)
Vano delimitato da strutture con resistenza al fuoco REI predeterminata, e comunque non inferiore a 60, dotato di due o più porte munite di congegni di autochiusura con resistenza al fuoco REI predeterminata (3), e comunque non inferiore a 60, con camino di ventilazione (4) (5) di sezione adeguata e comunque non inferiore a 0,10 mq sfociante al di sopra della copertura dell'edificio (6) (7), oppure vano con le stesse caratteristiche di resistenza al fuoco e mantenuto in sovrappressione (8) ad almeno 0,3 m bar (9), anche in condizioni di emergenza, oppure aerato direttamente verso l'esterno con aperture libere (10) di superficie non inferiore a 1 mq con esclusione di condotti.
(1) Alcune «norme verticali» di prevenzione incendi prevedono anche i c.d. «disimpegni non aerati» o i «disimpegni aerati» (che in certi casi devono avere specifiche caratteristiche indicate nelle regole tecniche, come ad es. per gli impianti termici o per i gruppi elettrogeni) di norma realizzati con strutture di separazione di caratteristiche almeno REI 60, muniti di porte REI 60 con dispositivo di autochiusura.
(2) Relativamente ai requisiti dimensionali minimi, non essendovi alcun riferimento normativo in merito, le dimensioni minime dei filtri vanno determinate secondo criteri come la modalità di apertura delle porte o la possibilità che i filtri vengano utilizzati oltre che da sole persone, anche da autoveicoli, mezzi di sollevamento merci, quali muletti o altro (Nota prot. n. P904/4122 Sott. 55 del 30-08-2001).
(3) La resistenza al fuoco di due porte di un filtro può essere sommabile così da ottenere, in quanto somma, il medesimo valore REI delle strutture (Nota prot. n. P904/4122 Sott. 55 del 30-08-2001).
(4) In merito alla possibilità che i camini di ventilazione possano comprendere anche tratti di condotto ad andamento sub-orizzontale, non si ravvedono dal punto di vista tecnico motivi ostativi alla loro realizzazione, a condizione che sia garantito il tiraggio naturale del condotto e che quest’ultimo sia adeguatamente protetto rispetto agli ambienti attraversati. Al riguardo, si soggiunge che un efficace sistema di ventilazione mediante condotte, può essere garantito da una doppia canalizzazione indipendente, una in entrata (immissione) ed una in uscita (estrazione), con condotti aventi la medesima sezione e relative bocche poste, rispettivamente, nella parte bassa e nella parte alta del locale (Nota prot. n. P478/4155/1 sott. 3 del 13-06-2000).
(5) I camini di ventilazione possono comprendere anche tratti di condotto a andamento suborizzontale, a condizione che sia garantito il tiraggio naturale del condotto e che quest’ultimo sia adeguatamente protetto rispetto agli ambienti attraversati. Un efficace sistema di ventilazione mediante condotte può essere garantito da una doppia canalizzazione indipendente, una in entrata (immissione) e una in uscita (estrazione), con condotti aventi la medesima sezione e relative bocche poste nella parte bassa e alta del locale (Nota prot. n. P904/4122 sott. 55 del 30-08-2001).
(6) Nei casi di singoli vani filtro interposti tra compartimenti ubicati sullo stesso piano, si ritiene che lo sbocco dei camini di ventilazione possa immettere sull’area a cielo libero sovrastante o adiacente, ovvero più prossima, al filtro stesso, purché tale area abbia i requisiti di «spazio scoperto» (Nota prot. n. P904/4122 Sott. 55 del 30-08-2001).
(7) La condizione dello sbocco dei camini di ventilazione al di sopra della copertura dell’edificio, così come formulato al più comune degli edifici serviti da scale a prova di fumo interne le quali ultime, comportando una serie di filtri verticalmente sovrapposti, richiedono in conseguenza lo sbocco dei camini alla sommità degli edifici stessi. Nei casi, invece, di singoli vani filtro interposti tra compartimenti ubicati sullo stesso piano, si ritiene che lo sbocco dei camini di ventilazione possa immettere sull’area a cielo libero sovrastante o adiacente – ovvero più prossima – al filtro stesso, purché tale area abbia i requisiti di «spazio scoperto» così come definito dal punto 1.12. del D.M. 30/11/1983 (Nota prot. n. P478/4155/1 sott. 3 del 13-06-2000).
(8) Nonostante alcune normative (es. alberghi, ospedali) prevedano, tra le varie funzioni che è possibile far assolvere dall'impianto di rivelazione, anche l'attivazione automatica di eventuali filtri in sovrappressione (che quindi sembra non debbano essere sempre in pressione), rimane valida la definizione del D.M. 30/11/83 e pertanto la sovrappressione deve essere garantita in ogni momento (Nota prot. n. P904/4122 Sott. 55 del 30-08-2001).
(9) Come modificato con «Errata corrige al D.M. 30 novembre 1983» pubblicato sulla GU n. 146 del 29-05- 1984, ove è specificato che si deve leggere «ad almeno 0,3 mbar» in luogo di «ad almeno 30 mbar» erroneamente riportato sulla GU n. 339 del 12-12-1983
(10) Il filtro a prova di fumo non può essere dotato di aperture di aerazione normalmente chiuse e la sovrappressione non può essere realizzata dopo la chiusura delle porte (Nota prot. n. P891/4101 sott. 106/33 del 26-07-2000).
Circolari allegate - ndr
Illustrazione
Vano delimitato da strutture con resistenza al fuoco REI predeterminata, e comunque non inferiore a 60, dotato di due o più porte munite di congegni di autochiusura con resistenza al fuoco REI predeterminata, e comunque non inferiore a 60 ed aerato:
Fig. 1 - Filtro a prova di fumo
Il DM 3/8/2015 ha ampliato la definizione (vedasi a seguire un confronto con il DM 30/11/1983) e con la nuova definizione di "Compartimento a prova di fumo").
..,
S.3.5 Caratteristiche generali
S.3.5.1 Spazio scoperto
Nota
Lo spazio scoperto limita la propagazione dell’incendio e dei suoi effetti. Lo spazio scoperto non è un compartimento antincendio.
1. Lo spazio scoperto è uno spazio a cielo libero o superiormente grigliato, anche delimitato su tutti i lati, avente: a. superficie lorda minima libera in pianta, espressa in m2, non inferiore a quella calcolata moltiplicando per 3 l’altezza in metri della parete più bassa che lo delimita; b. distanza fra le strutture verticali che delimitano lo spazio scoperto ≥ 3,50 m.
2. Se lo spazio scoperto è superiormente grigliato, il rapporto tra la superficie utile e la superficie lorda totale della griglia deve essere ≥ 75%.
3. Se le pareti delimitanti lo spazio a cielo libero o grigliato hanno strutture che aggettano o rientrano, detto spazio è considerato scoperto se sono rispettate le condizioni del comma 1 e se il rapporto fra la sporgenza (o rientranza) e la relativa altezza di impostazione è ≤ 1/2.
4. La superficie lorda minima libera in pianta dello spazio scoperto deve risultare al netto delle superfici aggettanti.
5. La minima distanza di 3,50 m deve essere computata fra le pareti più vicine in caso di rientranze, fra parete e limite esterno della proiezione dell’aggetto in caso di sporgenza, fra i limiti esterni delle proiezioni di aggetti prospicienti.
S.3.5.2 Compartimento
Nota
La funzione del compartimento è di limitare la progressione dell’incendio all’interno delle opere da costruzione, relegandone gli effetti a spazi circoscritti per un lasso temporale prestabilito.
1. Le caratteristiche generali del compartimento antincendio sono definite nel capitolo G.1.
S.3.5.3 Compartimento a prova di fumo
Nota
Nel compartimento a prova di fumo è impedito l’ingresso di effluenti dell’incendio da compartimenti comunicanti.
1.Per essere considerato a prova di fumo in caso di incendio che si sviluppi in compartimenti comunicanti, il compartimento antincendio deve essere realizzato in modo da garantire una delle seguenti misure antincendio aggiuntive verso i compartimenti comunicanti dai quali si intende garantire la protezione dall’ingresso di fumo:
a. il compartimento è dotato di un sistema di pressione differenziale progettato, installato e gestito secondo la norma UNI EN 12101-6;
b. i compartimenti comunicanti da cui si intende garantire la protezione dall’ingresso di fumo sono dotati di SEFC che mantengono i fumi al di sopra dei varchi di comunicazione (capitolo S.8);
c. il compartimento è dotato di SEFC, i compartimenti comunicanti da cui si intende garantire la protezione dall’ingresso di fumo sono dotati di SEFC (capitolo S.8);
d. il compartimento è separato con spazio scoperto dai compartimenti comunicanti da cui si intende garantire la protezione dall’ingresso di fumo;
e. il compartimento è separato con filtro a prova di fumo (paragrafo S.3.5.5) dai compartimenti comunicanti da cui si intende garantire la protezione dall’ingresso di fumo;
f. il compartimento è separato con altri compartimenti a prova di fumo dai compartimenti comunicanti da cui si intende garantire la protezione dall’ingresso di fumo.
Nota
Nella tabella S.3-5 sono riportati alcune applicazioni. Esempi di compartimento a prova di fumo sono: scala a prova di fumo, vano ascensore a prova di fumo, …
S.3.5.4 Filtro
Nota
Nel filtro si ritiene improbabile l’innesco di un incendio ed è limitato l’ingresso di effluenti dell’incendio da compartimenti comunicanti. Nel filtro è generalmente ammessa la presenza di reception, portinerie, sale d’attesa, limitate apparecchiature elettriche, impianti tecnologici e di servizio ausiliari al funzionamento dell’attività, …
1. Il filtro è un compartimento antincendio dotato di tutte le seguenti ulteriori caratteristiche:
a. avente classe di resistenza al fuoco ≥ 30 minuti;
b. munito di due o più chiusure dei varchi almeno E 30-Sa;
c. avente carico di incendio specifico qf ≤ 50 MJ/m2;
d. non vi si detengono o trattano sostanze o miscele pericolose;
e. non vi si effettuano lavorazioni pericolose ai fini dell’incendio.
S.3.5.5 Filtro a prova di fumo
Nota
Per definizione, il filtro a prova di fumo è un filtro (paragrafo S.3.5.4), avente anche i requisiti di compartimento antincendio a prova di fumo (paragrafo S.3.5.3). Pertanto nel filtro a prova di fumo si ritiene improbabile l’innesco di un incendio ed è impedito l’ingresso di effluenti dell’incendio. Sono accettate anche le modalità realizzative tradizionali di cui al comma 1, perché si ritiene consentano il rapido smaltimento degli effluenti che eventualmente vi entrassero.
1. Se monopiano e di ridotta superficie lorda, è ammesso realizzare il filtro a prova di fumo come filtro (paragrafo S.3.5.4), dotato di una delle seguenti ulteriori caratteristiche:
a. mantenuto in sovrappressione, ad almeno 30 Pa in condizioni di emergenza, da specifico sistema progettato, realizzato e gestito secondo la regola dell’arte;
Nota
La norma UNI EN 12101-6 riporta un metodo generalmente accettato per progettare il sistema di sovrappressione del filtro a prova di fumo.
b. dotato di camino per lo smaltimento dei fumi d’incendio e di ripresa d’aria dall’esterno, adeguatamente progettati e di sezione ≥ 0,10 m2;
c. areato direttamente verso l’esterno con aperture di superficie utile complessiva ≥ 1 m2. Tali aperture devono essere permanentemente aperte o dotate di chiusure apribili in modo automatico in caso di incendio. È escluso l’impiego di condotti.
2. Per i varchi del filtro a prova di fumo è ammesso l’impiego di chiusure E 30
Vedi a seguire
Tabella S.3-5 Esempi di compartimenti a prova di fumo
Confronto
| DM 3/8/2015 | DM 30/11/1983 |
| Classe minima di resistenza al fuoco 30 | comunque non inferiore a 60 |
| Porte devono avere tenuta anche ai fumi freddi - requisito Sa | --- |
| Carico di incendio specifico qf non superiore a 50 MJ/m2 | --- |
| Camino adeguatamento progettato | Camino di ventilazione di sezione adeguata e comunque non inferiore a 0,10 mq |
| I sistemi in sovrappressione devono essere progettati, realizzati e gestiti a regola dell’arte |
--- |
| La sovrappressione deve essere attuata solo in emergenza | --- |
| Il sistema di sovrappressione deve comunque consentire la facile apertura delle porte per le finalità d'esodo (capitolo S.4), nonché la loro completa autochiusura in fase di attivazione dell'impianto. |
--- |
Camino di ventilazione / Shunt
Una canna di ventilazione tipo Shunt è costituita da almeno due condotte adiacenti di materiale resistente al fuoco (ad esempio calcestruzzo), che sfociano oltre la copertura, per garantire un corretto apporto di aria pulita e l'eliminazione del fumo.
A ogni piano una delle condotte presenta un'apertura direttamente comunicante con il filtro a prova di fumo, schermata inferiormente da una paretina inclinata e un'ulteriore apertura di comunicazione con la seconda condotta per l'evacuazione dei fumi.
L'apertura di ventilazione, con superficie di almeno 0,10 mq viene protetta da un serramento resistente al fuoco
Fig. 2 - Camino di ventilazione shunt
Parti:
- Il camino di ventilazione (Smoke Shaft) presenta una apertura in sommità ed una aperture in corrispondenza di ciascun piano;
- Le apertura in corrispondenza di ciascun piano devono essere dotate di serrande (dampers) in posizione di normalmente chiuso;
- In caso di incendio, solo la serranda corrispondente al piano interessato dal fuoco viene aperta per consentire l’evacuazione del fumo dall’apertura in sommità del camino
Il Codice di Prevenzione Incendi segnala in bibliografia del Capitolo S3:
G T Tamura, C Y Shaw, “Basis for the design of smoke shafts”, Fire Technology, Volume 9, Issue 3, pp 209-222, September 1973 (allegato)
Altri esempi:
Fig. 3 - Camino di ventilazione shunt - Vibrapac
...
In molti paesi europei, non è previsto il "Filtro a prova di fumo".
La norma armonizzata EN 12101-6 disciplina la pressurizzazione dei compartimenti a prova di fumo, principalmente vani scala. Essa rappresenta il riferimento europeo per i paesi in cui non esiste il concetto di “filtro-fumo”. e prescrive la messa in sovrappressione direttamente del compartimento “vano scala”.
Gli impianti di ventilazione a protezione delle scale in edifici multipiano prevedono un sistema di pressurizzazione multilivello. La pressione maggiore è realizzata nelle scale. Le aree filtro, se previste, hanno un livello di pressurizzazione minore. Gli ambienti a rischio incendi hanno livello di pressurizzazione pari a 0 Pa.
Dimensionamento filtro a prova di fumo
Dimensioni minime locale filtro
La normativa nazionale non indica le dimensioni minime o le modalità per il dimensionamento di un filtro a prova di fumo (se non nel contesto di una RTV).
Lo standard NFPA 101, al capitolo 7.2.3, indica tutti i requisiti necessari per la progettazione di un filtro a prova di fumo.Lo standard indica le dimensioni minime che deve avere un filtro a prova di fumo in funzione del tipo di ventilazione adottata, naturale o meccanica.
7.2.3 Smokeproof Enclosures
In allegato il capitolo 7.2.3
Sistemi in sovrappressione (differenza di pressione)
...
Standard di riferimento per la progettazione dei sistemi in sovrappressione sono, ad esempio:
- UNI EN 12101-6 “Sistemi per il controllo di fumo e calore - parte 6: Specifiche per i sistemi a differenza di pressione - Kit” (Armonizzata CPR Regolamento (UE) 305/2011).
- EN 12101-13:2013 "Smoke and heat control systems - Part 13: Pressure differential systems (PDS) design and calculation methods, acceptance testing, maintenance and routine testing of installation".
- NFPA 101 "Life Safety Code"
- NFPA 92 "Standard for Smoke Control Systems".
...
2. EN 12101-6 Sistemi a differenza di pressione - Kit
EN 12101-6:2022
Sistemi per il controllo di fumo e calore - parte 6: Specifiche per i sistemi a differenza di pressione - Kit
Movimento del fumo nell'edificio
Il presente documento riguarda le informazioni e i requisiti relativi alla progettazione, ai metodi di calcolo, all'installazione e alla verifica dei sistemi destinati a limitare la diffusione del fumo mediante differenziali di pressione. I sistemi di pressione differenziale possono essere ottenuti con due metodi:
i) pressurizzazione - mantenimento di una pressione positiva all'interno degli spazi protetti (vedi Figura 5), o
ii) depressurizzazione - rimozione di gas caldi dalla zona di fuoco a una pressione inferiore rispetto allo spazio protetto adiacente (vedere Figura 6).
...
Legenda
1 Scala
2 Filtro
3 DP Spazio Depressurizzato
4 Dispersioni verso l’esterno
5 Trafilamenti attraverso le porte ecc..
6 Immissione aria
7 Costruzione resistente al fuoco
Fig. 6. Esempio di sistema depressurizzato - spazi senza finestre esterne
...
Sono definiti i seguenti parametri principali:
- Pressione all’interno del comparto 50 Pa
- Velocità del flusso di aria in uscita dal vano porta se la stessa fosse aperta da 0.75 a 2.00 m/s a seconda della classe.
- Massimo sforzo accettabile da applicare all’apertura delle porte del compartimento 100 N.
- Presenza in tutti i compartimenti adiacenti di una serranda fumi automatizzata sfociante all’aperto.
Fig. 6 - Pressurizzazione solo delle scale con o senza filtro (schemi da EN 12101-6)
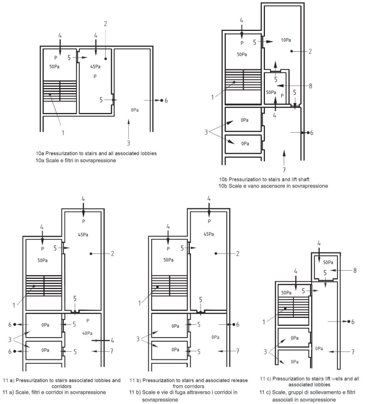
Se i filtri presenti tra le scale e il piano hanno funzioni supplementari, questi sono protetti con un sistema di pressurizzazione indipendente. È possibile pressurizzare anche i corridoi se costituiscono via di esodo, al fine di confinare l’incendio nella stanza sede di innesco. In ogni caso, all’attivazione dello stato di emergenza incendio:
- tutte le scale sono pressurizzate;
- i filtri sono pressurizzati a tutti i piani o solo al piano d’incendio;
- i corridoi possono eventualmente essere pressurizzati solo al piano d’incendio.
In Figura 7 sono riportate alcune configurazioni di pressurizzazione possibile.
Fig. 7 - Configurazioni di pressurizzazione delle scale, dei filtri e dei corridoi associati (schemi da EN 12101-6)
...
1. Serrande di pressione impostate per funzionare a 60 Pa (max) all'interno del vano scala
2. Zona impianti protetta da compartimenti REI 120 che ospita i ventilatori per la sovrapressione
3. Rilevatore di fumo
4. Coppia di aperture da usarsi alternativamente poste su facciate distinte per garantire l’aria di riscontro, complete di rilevatore di fumo e serranda motorizzata
5. Unità d’aria primaria e di back-up di pressurizzazione
6. Presa d'aria alternativa
7. Serranda tagliafuoco motorizzata
8. Presa d'aria
9. Una soluzione alternativa è quella di controllare la ventola per assicurare che la sovrapressione non superi i 60 Pa max.
10. Scale antincendio
11. Vano ascensore antincendio (se necessario)
12. Corridoio
13. Trafilamento
14. Il sistema di depressurizzazione è funzione dell’altezza delle scale. Sono previsti:
- più punti per edifici di altezza superiore a 11 m
- un singolo punto per edifici di altezza inferiore a 11 m
15. Filtro antincendio
16. L'aria di pressurizzazione viene scaricata ad ogni livello del filtro
17. La distanza tra gli scarichi deve essere non superiore a tre piani
18. Ambiente sede di innesco dell’incendio
19. Ventola di rilascio d’aria
20. Zona accesso soccorsi antincendio
21. Pulsante di sgancio per Vigili del Fuoco
Figura 8 - Caratteristiche di un tipico sistema differenziale di pressione di una scala alimentato superiormente (schemi da EN 12101-6)
...
3. EN 12101-X Norme della serie
UNI EN 12101-1:2006
Sistemi per il controllo di fumo e calore - Parte 1: Specifiche per le barriere al fumo
Data disponibilità: 13 luglio 2006
La presente norma è la versione ufficiale in lingua inglese della norma europea EN 12101-1 (edizione agosto 2005) e dell'aggiornamento A1 (edizione marzo 2006). La norma specifica i requisiti prestazionali del prodotto, la classificazione e i metodi di prova per barriere al fumo installate all'interno di edifici.
UNI EN 12101-2:2017
Sistemi per il controllo di fumo e calore - Parte 2: Evacuatori naturali di fumo e calore
Data disponibilità: 17 ottobre 2017
La norma si applica agli evacuatori naturali di fumo e calore (SENFC) come componenti in sistemi per il controllo di fumo e calore. La norma specifica i requisiti e indica metodi di prova per evacuatori naturali di fumo e calore destinati all'installazione negli edifici come componenti in sistemi per il controllo di fumo e calore.
...
segue in allegato
Certifico Srl - IT | Rev. 1.0 2024
Copia autorizzata Abbonati
Matrice revisioni
| Rev. | Data | Oggetto | Autore |
| 1.0 | 2024 | - UNI EN 12101-6:2022 - Annex A EN 12101-6:2022 - Aggiunto Cap. 3: 3. EN 12101-X Norme della serie - Altri aggiornamenti |
Certifico Srl |
| 2.0 | 2019 | --- | Certifico Srl |
D.M. 30 novembre 1983
EN 12101-6:2022 - Sistemi per il controllo di fumo e calore Parte 6: Kit
NFPA 92 - Standard for Smoke Control Systems - 2015
NFPA 101 - Life Safety Code - 2015
| Descrizione | Livello | Dimensione | Downloads | |
|---|---|---|---|---|
| Filtro a prova di fumo e Sistemi EN 12101-6 Rev. 1.0 2024.pdf Certifico Srl - Rev. 1.0 2024 |
1080 kB | 159 | ||
| Filtro a prova di fumo e Sistemi EN 12101-6 Rev. 00 2019.pdf Certifico Srl - Rev. 0.0 2019 |
555 kB | 263 | ||
| NFPA 7.2.3 Smokeproof Enclosures Ed. 2009.pdf Certifico Srl - Rev. 0.0 2019 |
74 kB | 107 | ||
| Basis for the Design of Smoke Shafts.pdf Certifico Srl - Rev. 0.0 2019 |
477 kB | 98 | ||
| Nota prot. n. P891-4101 sott. 106-33 del 26 luglio 2000.pdf Certifico Srl - Rev. 0.0 2019 |
66 kB | 107 | ||
| Nota prot. n. P904 4122 Sott. 55 del 30-08-2001.pdf Certifico Srl - Rev. 0.0 2019 |
68 kB | 100 |























